Property Details
Basic Information
- Property Type: Condo
- MLS Number: 5055471
- MLS Status: Active
- Lot Description: Wooded
- Foreclosure: No
- Latitude: 42.774342
- Longitude: -71.344212
Building
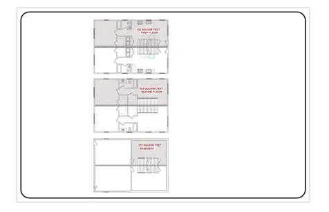
- Square Feet: 1,550
- Year Built: 2025
- Zoning: r
- Stories: 3
- Roof: Architectural Shingle
- Foundation: Concrete
- Garage Spaces: 1
Location
- Town: Windham
- County: Rockingham
- State: NH
- Zip: 03087
Finance
- HOA Fee: $450
- Fee Includes: Landscaping, Plowing, Trash, Condo Association Fee
Water
- Water Access: No
- Water View: No
Interior Features
Bedrooms
- Bedrooms: 2
Bathrooms
- Bathrooms: 2
- Full Baths: 2
Basement
- Basement: Concrete Floor, Unfinished, Walkout
Exterior Features
Features
- Driveway: Paved
Utilities and Appliances
Utilities and Appliances
- Sewer: Private, Septic Shared
- Water: Private, Shared
Community
Amenities
- Adult Community: Yes
Area
- Subdivision: Del Ray Place





















